
Атмосфера тайной лаборатории в интерьере небольшого бара — проект INT2 architecture
Александр Малинин и Анастасия Шевелева из студии INT2 architecture создали камерный интерьер нижегородского бара Travnik на основе отсылок к природным материалам и формам. Ключевым референсом проекта стал образ алхимической лаборатории, в которой из земли, минералов и дерева появляются настоящие произведения искусства.
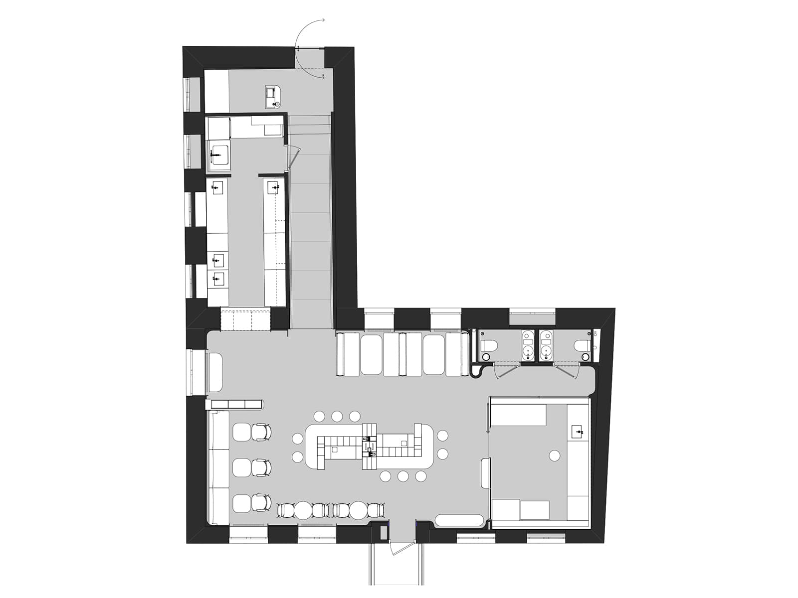
- Локация: Нижний Новгород
- Площадь: 110 м²
- Авторы: INT2 architecture
- Фото: INT2 architecture
Архитекторы предусмотрели два входа в помещение: первый ведет посетителей в зал через длинный туннель с центральной улицы города, а второй — из секретного внутреннего дворика с аптекарским огородом. На нем, среди прочего, выращиваются травы для напитков бара. Отсылки к образу пещеры заметны сразу в нескольких крупных объемах основного пространства. Главный из них — контактная барная стойка с винтажными табуретами и отделкой под натуральный камень. Ее песочно-бежевый оттенок продолжает палитру стен и нависающих потолков, покрытых выразительной фактурной штукатуркой. Динамичности в интерьер привносит необычный волнообразный потолок: из ниш в его нижних точках свисают декоративные растения с подчеркнутыми скрытой подсветкой листьями. За озеленение в проекте отвечала команда студии декора МА Decor. Зону посадок дизайнеры обозначили массивными диванами с брутальной кожаной обивкой. Вместе с металлическими стеллажами и другими деталями они были выполнены в мастерской «Правосварка». Еще одним оригинальным элементом оказалась лаборатория, в которой изготавливаются собственные дистилляты для коктейлей. Гости могут наблюдать за работой барменов через стекло.
















