
Драматичный интерьер ресторана с японским характером — проект Design Studio MAKET
Интерьер этого ресторана в Омске дизайнеры Design Studio MAKET создавали для владельца ресторанной группы «Заря» Антона Назаренко. Среди его пожеланий значилась уютная и камерная атмосфера традиционной изакаи. Помещение было довольно большим для такого формата, поэтому в оформлении команда смогла воплотить множество отсылок к истории японских баров. Единственным референсом со стороны заказчика был ресторан «Izakaya Matsu» — Константину Остроухову, Анне Николаевой и Анне Ситниковой удалось добиться схожего расслабленного настроения.
- Локация: Омск
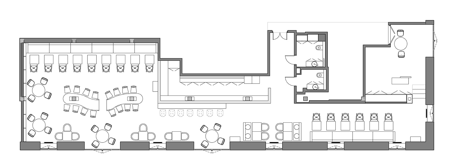
- Площадь: 205 м²
- Авторы: Константин Остроухов, Анна Николаева, Анна Ситникова, Design Studio MAKET
- Фото: Инна Каблукова
Ранее помещение ресторана занимало другое заведение общепита, поэтому перепланировка была незначительной: дизайнеры перенесли парадный вход, чтобы сформировать гардеробную, совмещенную с ресепшн. Пространство было разделено на две части разными световыми сценариями, которые разграничили почти девяносто посадочных мест. В правой половине разместились залы с рассеянным освещением и зонами для быстрого перекуса. Левая, наоборот, отведена под волнообразный стол, символизирующий слияние Оми и Иртыша. Над столешницей размещен центральный арт-объект интерьера — массив веток, собранных на берегах этих двух рек. Каждый декоративный элемент рассказывает свою историю, привнося в оформление глубину. Особое внимание уделено двадцатиметровой подвесной волне: она символизирует силуэт Иртыша и отражает связь с водной линией города. Название «Yosai» — в переводе с японского «крепость» — тоже было выбрано не случайно: здание входило в исторический комплекс Омского кремля. Команда студии оставила на стенах открытый кирпич, а также обнажила фундаментальные конструкции и материалы — бетонные и деревянные блоки. В поддержку смыслового содержания отделки в одном из углов появились амбарные доски старой хижины, разобранной специально для проекта.



















