
Шкафы как элемент зонирования в интерьере просторной бразильской квартиры — проект Луиза Солано
Большая квартира, владельцы которой обратились к дизайнеру Луизу Солано, находится на верхнем этаже исторического здания по проекту архитектора Рино Леви. Ее интерьер решили полностью преобразовать: вместо морально устаревшего оформления с темными комнатами супруги получили стильное современное пространство с выразительными материалами.
- Локация: Сан-Паулу
- Площадь: 160 м²
- Авторы: Луиз Солано
- Фото: Камила Альба
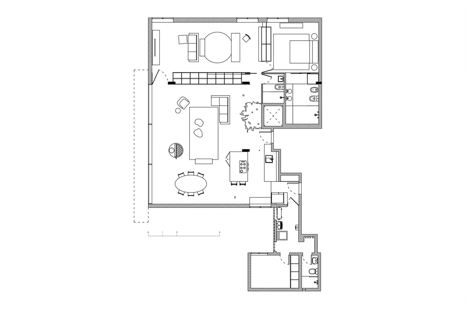
Исходная планировка квартиры включала в себя три основных блока: линейно расположенные спальни, гостиную с кухней и пристройку со служебными помещениями. Сделать зонирование более эргономичным помог демонтаж всех внутренних перегородок, которые дизайнер заменил высокими шкафами. Две вместительные системы хранения отделили друг от друга оставшиеся на прежних местах комнаты. В первую интегрированы сразу несколько объемов — шкафы входной группы, небольшая ванная и гардеробная. В досуговой зоне эта конструкция плавно перетекает в кухонный гарнитур. При оформлении второй зоны главной задачей дизайнера стало создание изолированного кабинета. Почти половину площади квартиры занял общественный блок с панорамным окном. С ним соседствуют место для готовки и просторная гостиная с несколькими несущими колоннами. Наполнение комнаты получилось небанальным: несущую балку Луиз Солано приспособил под кашпо, а камин интегрировал в цилиндр из нержавеющей стали. Брутальная фактура материала продолжается на фасадах отдельно стоящего острова. Ее дополняют текстура необработанного бетона на потолке и полы, покрытые краской в теплом белом оттенке. Цветовую гамму интерьера завершили мягкие зеленые акценты, объединяющие его с окружающей дом зеленью.












