
Компактная кухня и необычное зонирование в квартире в Алматы — проект Марины Сапуновой
Владельцы этой квартиры обратились к Марине Сапуновой с просьбой создать для них оформление, располагающее к отдыху и расслаблению. Источником вдохновения для проекта стали сами заказчики — их динамичный ритм жизни, позитивный настрой и любовь к путешествиям. Минимализм, чистота линий и отсутствие лишних деталей оказались фишкой авторской концепции.
- Локация: Алматы
- Площадь: 75 м²
- Автор: Марина Сапунова
- Фото: Мила Лотоцкая
- Стиль: Юлия Мецгер
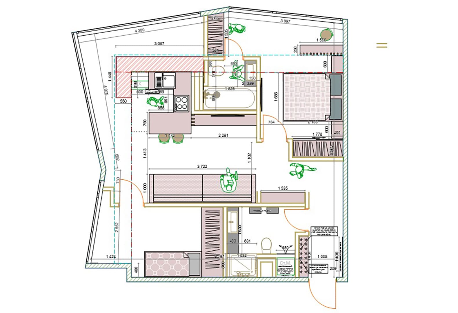
В процессе перепланировки команда выделила две спальни и пару санузлов: с душевой кабиной — для главы семьи, а второй, с ванной — для его супруги. Дизайнеры перенесли кабинет в зону между витражом и несущей стеной, которая раньше была абсолютно нефункциональной. Рядом с ним разместилась компактная кухня с лаконичными фасадами в тон отделке стен. При этом пространство залито светом из окна напротив. По соседству с местом для готовки разместилась проходная гостиная — ее сформировали бежевый диван, журнальный столик и лаконичная тумба с выдвижными ящиками. Даже в спальне заказчиков здесь можно найти необычные приемы зонирования — так, туалетный столик от кровати и встроенной системы хранения отделяет пропускающая свет реечная перегородка. Главной идеей интерьера стала концепция «квадрат в круге», благодаря которой в пространстве появились необычные детали: тумба из натурального шпона с графическим рисунком и оригинальные вазы. Общего ощущения легкости оформления дизайнеры добились за счет дверей скрытого монтажа, незаметных креплений стеклянных перегородок и отсутствия подиумов в душевой. Так как работа над проектом проходила в атмосфере полного доверия, заказчики полностью положились на видение Марины Сапуновой. В результате они получили именно тот интерьер, о котором мечтали — минималистичный и умиротворяющий.
















