
Сдержанный интерьер квартиры для молодой пары — проект Елизаветы Краснопёровой
Заказчики этого проекта — активная молодая пара IT-специалистов, которые занимаются спортом и много путешествуют. Они обратились к Елизавете Краснопёровой с запросом на создание авторского оформления, сочетающего черты современного и скандинавского стилей с элементами джапанди. Среди других пожеланий фигурировали светлая цветовая гамма с теплыми тонами и вкраплениями дерева.
- Локация: Домодедово
- Площадь: 59 м²
- Автор: Елизавета Краснопёрова
- Фото: Алексей Чуднов
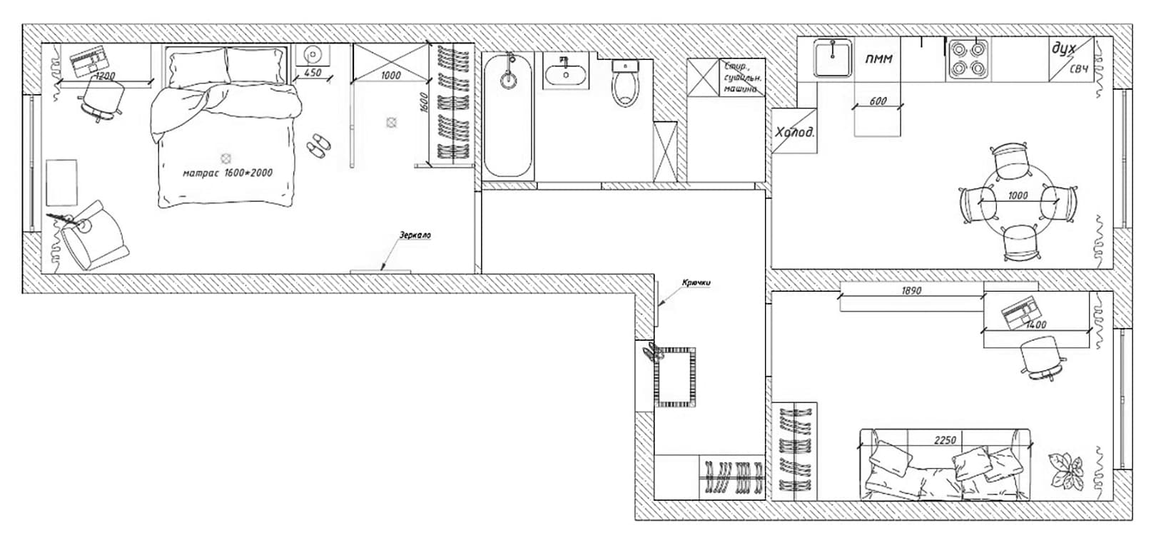
Интерьер требовалось реализовать без глобальных изменений в планировке. В результате расположение межкомнатных стен осталось прежним, но в просторной спальне удалось выделить гардеробную с помощью стеклянной перегородки. Однако в процессе реализации интерьера неизбежно возникали проблемы с качеством готовой отделки: например, вздулась штукатурка. Покрытия привели в порядок, и обволакивающий серо-бежевый оттенок стен стал фоном для корпусной мебели. Среди нее выделяется линейный кухонный гарнитур с монохромными нижними секциями и колонной для бытовой техники. Для верхних шкафов Елизавета Краснопёрова, наоборот, выбрала активную текстуру дерева. Она перекликается с обеденной группой с круглым столом и бежевыми стульями. Приватная комната получилась более уютной за счет обилия текстиля и декора: обивку пышного кресла визуально повторяет корпус кровати. Композицию дополняют многоярусная люстра, рифленые стеновые панели и обои с абстрактным рисунком. В зоне для хранения одежды тоже предусмотрено отдельное освещение.
















