
Амстердамская квартира на четырех стальных столпах – проект Unknown Architects
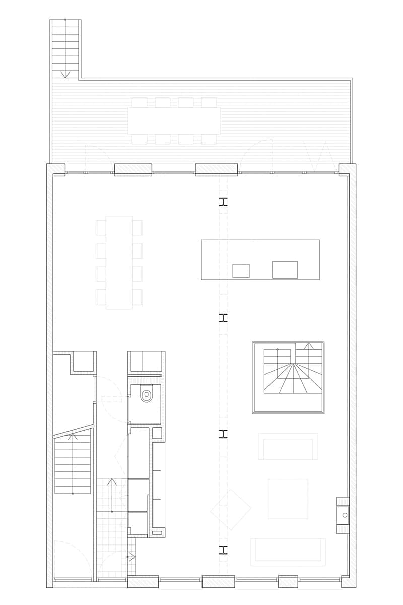
Несмотря на внушительную площадь, 200-метровая квартира в Амстердаме казалась неуютной и была плохо архитектурно решена: в вестибюле доминировала центральная несущая стена. Голландские архитекторы Unknown Architects первым делом избавились от навязчивого монолита и возвели на замену четыре стальных колонны.
- Локация: Амстердам
- Площадь: 200 кв.м
- Авторы: Unknown Architects
- Фото: MWA Hart Nibbrig
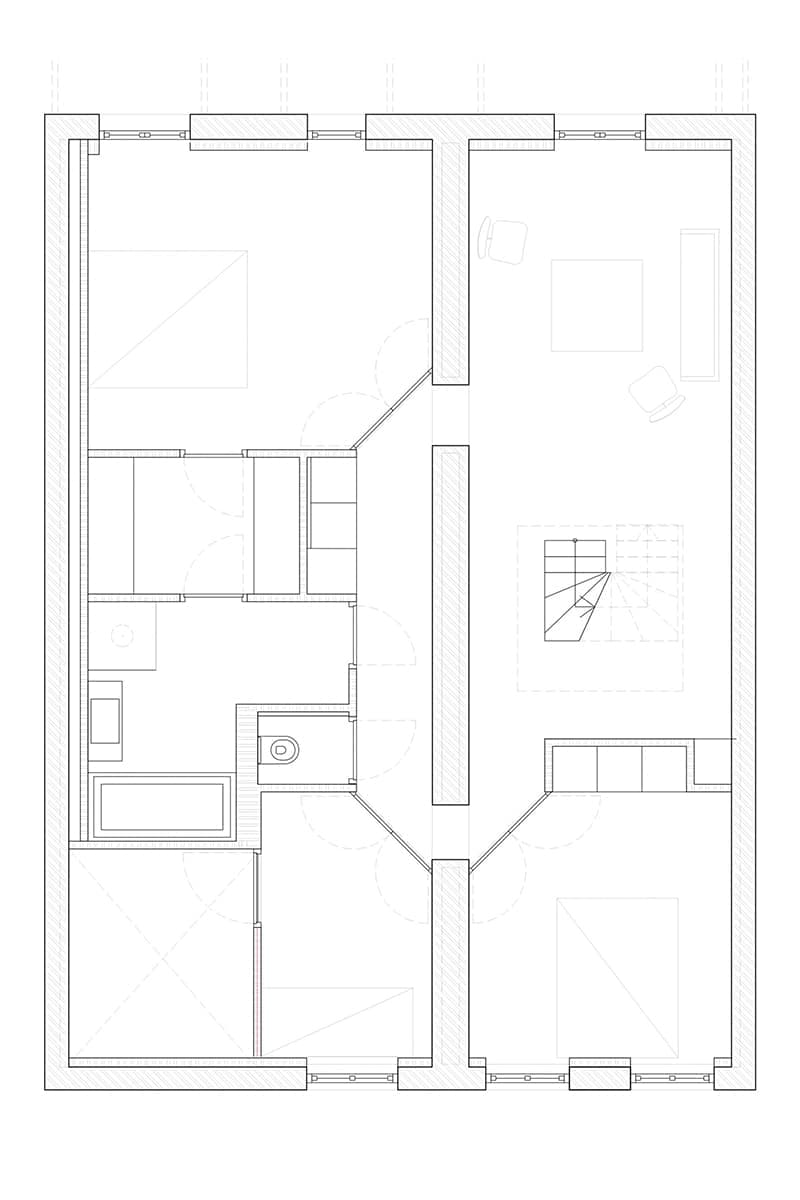
Бордовые колонны превратили этаж единый жилой оупен-спейс. Архитекторы первоначально планировали задать помещению индустриальный характер и оставить нетронутым красный оксид на поверхности металлических колонн, однако правила пожарной безопасности в Голландии предполагают обязательное применение огнестойких покрытий. Так, колонны пришлось покрасить в оттенок, соответствующий первоначальному цвету. Этот оттенок в пространстве поддерживает кожаный диван в лаунж-зоне. Стены на этаже выкрашены в белый, пол залит бетоном. На месте бывшей стены расположились три образующих для пространства элемента: остров для завтрака из орехового дерева, покрытый серым мрамором, квадратный белый объем, который вмещает холодильник, гардероб, туалет и дополнительное место для хранения, а также – слегка извилистая лестница, ведущая на уровень подвала, где находятся спальни.













