
Воздушный интерьер квартиры в голубых тонах — проект PS Studio
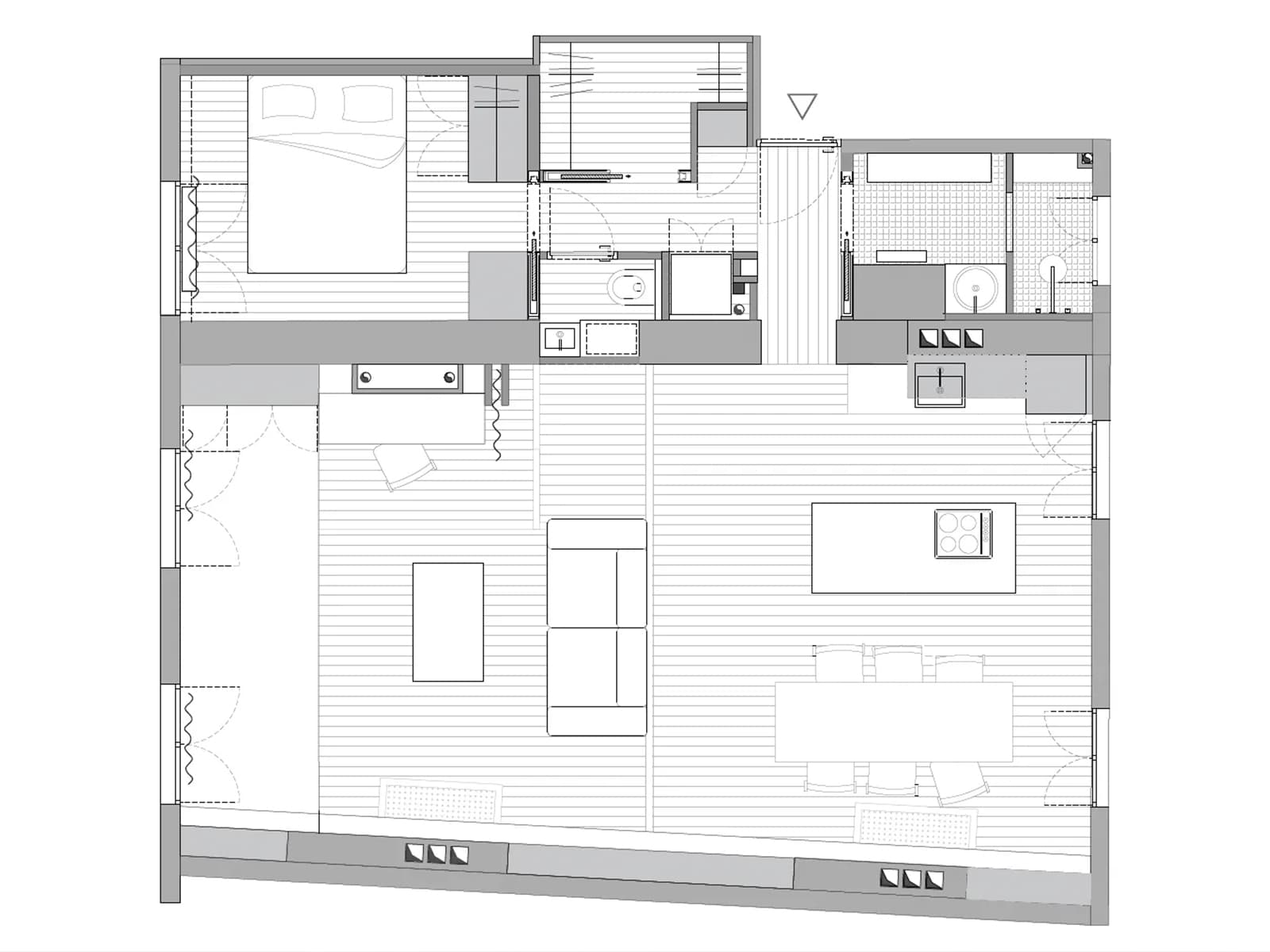
Квартира, за преображение которой взялись архитектор Пьер Севажоль и команда PS Studio, находится в 10-м округе Парижа. Объект был необычным, так как объединял небольшие квартиры, разграниченные толстой несущей стеной. Заказчики — молодая пара с активным образом жизни — попросили использовать в проекте светлое дерево и их любимые синие оттенки. Эти пожелания легли в основу зонирования интерьера с камерной темной спальней и градиентами.
- Локация: Париж
- Автор: PS Studio
- Фото: Жан-Баптист Трие
В основу будущего планировочного решения легла несущая перегородка, делившая объект на две части: приватный блок ориентирован на юг, а общественный — на запад. Благодаря большим окнам из просторной гостиной открывается вид на парижский пейзаж. Поскольку дизайнеры демонтировали старую отделку, все материалы подбирали заново. Теперь зоны квартиры объединяет паркет из дуба, рыжеватый подтон которого перетекает на корпусную мебель. Для кухонного гарнитура команда подобрала более светлые дубовые фасады без тонирующего лака. За счет единства фактур гостиная, кухня и рабочее пространство сливаются в цельную композицию. Конструкция скамейки проходит под пятиметровым книжным шкафом, а позже переходит в подоконник и письменный стол. Единственными цветовыми штрихами интерьера оказались оранжево-желтые стулья и синий стол, найденный у бренда Kann Design. Такая палитра выбиралась как комплементарная ключевому голубому оттенку проекта. Тамбурный проход в спальню разделяет гардеробную, прачечную и ванную. Фишкой санузла оказалась перегородка из стеклоблоков, пропускающих естественный свет из окна душевой в зону умывальников. Стены здесь отделаны плиткой Winckelmans, оттеняющей детали из нержавеющей стали. В камерной комнате появилось окрашенное изголовье кровати, дополненное парой бра Charlotte Perriand.














