
Яркие оконные откосы в интерьере крошечной двухэтажной квартиры в Порту — проект студии Spaceworkers
Spaceworkers — португальская студия, известная своей чуткостью к историческому контексту объектов. Уделяя особое внимание взаимосвязи пространства, памяти и функции, команда стремится переосмыслить архитектурное наследие посредством современных и минималистичных решений. Работа дизайнеров отражает глубокое уважение к истории локаций, в которых они работают, — особенно это заметно по реконструкции маленькой квартиры в Порту.
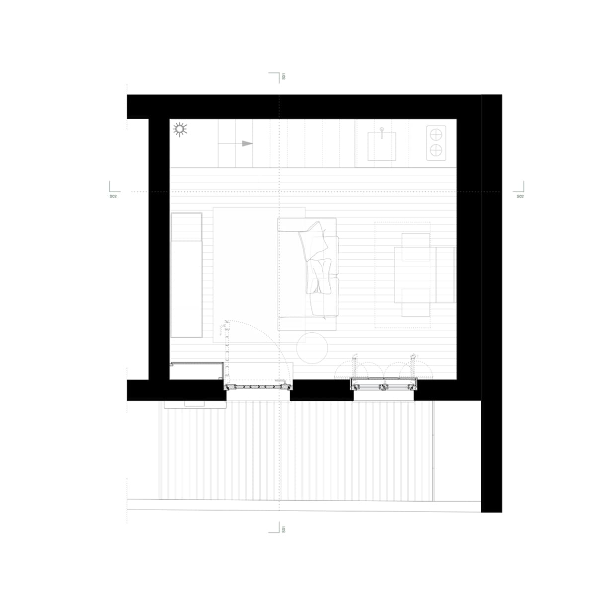
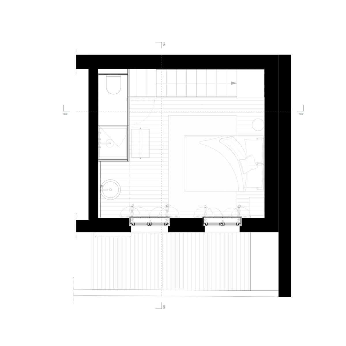
- Локация: Порту
- Площадь: 32 м²
- Авторы: студия Spaceworkers
- Фото: студия Spaceworkers
В интерьере этой квартиры дизайнеры постарались переосмыслить саму идею проживания на ограниченной площади. Высокие потолки позволили возвести здесь антресольный этаж, на который ведет необычная скульптурная лестница. Она состоит из двух сегментов — первый вырезан в нижней секции кухонного гарнитура, а верхний крепится к потолку. Контраст пастельного зеленого и черного цветов подчеркивает текстуру оштукатуренных каменных стен и объединяет между собой ключевые оттенки проекта. Нижний уровень квартиры вместил в себя только общественную зону, поэтому здесь нет ничего лишнего — только кухня с накладной раковиной, компактная обеденная группа и тумба с телевизором. Древесина с активным рисунком оживила брутальную отделку и привнесла в оформление тепла. Особенно этот эффект прослеживается в расположенной наверху спальне. Дополнительным материалом в ней выступают зеркальные панели, которыми покрыт объем санузла. Они зрительно увеличивают помещение, добавляя ему строгости.

















