
Дерево и зеркальные поверхности в квартире-студии дизайнера — проект Анастасии Придачиной
Анастасия Придачина разработала оформление собственной квартиры в Минске. Так как вкусы дизайнера регулярно меняются, получившийся интерьер воплощает микс ее предпочтений на данный момент. Обязательными элементами проекта должны были стать темно-красные, шоколадные и пепельные оттенки, оживленные разными паттернами и фактурами.
- Локация: Минск
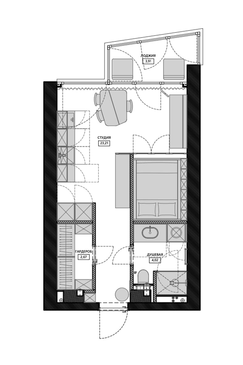
- Площадь: 35 м²
- Автор: Анастасия Придачина
- Фото: Андрей Кот
Компактная студия досталась новой хозяйке с готовой планировкой, поэтому дизайнер начала проект с зонирования и декорирования. В квартире разместились прихожая, гардеробная, санузел, общая зона кухни-столовой и спальная ниша. В самой дальней точке расположена лоджия, с которой открывается вид на зеленую аллею и живописные закаты. Все функциональные блоки объединены отделочными материалами, в том числе керамогранитом и термоольхой. В проектах Анастасии Придачиной регулярно появляется дерево: в этот раз ей хотелось раскрыть его потенциал в рамках многоквартирного дома. Важным элементом оформления стало обилие зеркал разных форм и функционала — например, лаконичное изделие с тонкой металлической окантовкой соседствует с моделью в кожаной раме. Основная мебельная группа кухни растворяется на фоне зеркальной панели с состаренным эффектом. Обилие отражающих поверхностей визуально искажает границы пространства. Глянцевая текстура встречается в мелкоформатном керамограните, которым уложена столешница кухни, и навесной полке бледно-голубого оттенка. Почти вся акцентная мебель выполнена из лиственничной фанеры. Панорамное окно декорировано тканью в нескольких исполнениях: монолитный тюль играет роль базы для бархатных и льняных полотен. Винтаж завершил лаконичную композицию: за ширмой размещена пара итальянских бра 70-х годов прошлого века. Их пыльно-розовое стекло подсказало основной оттенок стен. Над столом можно заметить люстру с хрустальными элементами из бабушкиного дачного чулана: она выступает своего рода оммажем американским интерьерам, где часто используют подвесы. Финальными штрихами оформления оказались работы белорусских художников Сергея Савича и Софии Казанцевой.
















