Сдержанный интерьер залитой светом квартиры со сложной планировкой — проект ANGA Project
Сдержанный интерьер залитой светом квартиры со сложной планировкой — проект ANGA Project
Заказчики Лейлы Ангеловой, Ваге Габриеляна и Дарьи Кахновской обратились к ним с запросом на создание интерьера, который не придется сильно менять при появлении детей. Квартира, над которой предстояло поработать дизайнерам, находится в московском ЖК «Титул». Клиенты оказались увлеченными коллекционерами искусства, поэтому собранные ими арт-объекты предстояло вписать в оформление. Важной частью проекта стали обширные системы хранения, которые в будущем смогут вместить новые предметы и сувениры из разных стран.
Главной особенностью этой квартиры стала сложная непривычная геометрия пространства. Разработать подходящую семье планировку было непросто, но в существующих границах удалось добиться правильной расстановки мебели после попыток учесть все потребности членов семьи.
Лейла Ангелова, Ваге Габриелян, Дарья Кахновскаядизайнеры интерьераВ качестве основного стилистического направления в проекте преимущественно использовался скандинавский минимализм. Также в интерьер были интегрированы элементы экодизайна, поэтому он выглядит достаточно сдержанно, что характерно для обоих стилей.
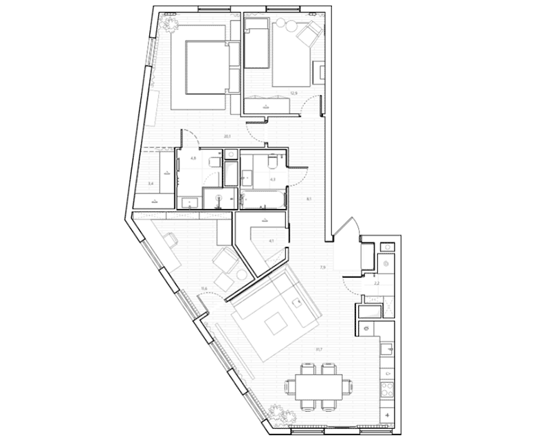
Планировка
У объекта достаточно сложная асимметричная геометрия. Самую освещенную часть пространства дизайнеры отдали кухне-гостиной, в которой хотелось сохранить исходное ощущение простора и воздуха. Оформление решили не перегружать визуально, поэтому главная роль здесь досталась мягкой группе для проведения семейного досуга, а при входе в квартиру разместили гардеробную и небольшую постирочную. Для членов семьи спроектировали два санузла — общую комнату с ванной и мастер-санузел с душевой.
План квартиры с мебелью
В спальне заказчиков организовали еще одну гардеробную: она получилась довольно необычной, так как дизайнеры отказались от привычного формата изолированного помещения. Вместо этого ее выделили текстилем, который привнес в интерьер особого уюта. Другим важным пожеланием супругов был кабинет, окна которого теперь выходят на высотку Котельнической набережной. В нем предстояло расположить сразу несколько интересных элементов — большой стеллаж для искусства, удобный стол, кресло напротив окна и скрытый бар.
Интерьер и решения
Палитра и контекст
По мнению команды, дом — это место спокойствия и отдыха, в котором не должно быть визуальных раздражителей. Чтобы вписать в интерьер заданные архитектурой жилого комплекса оттенки, Лейла Ангелова, Ваге Габриелян и Дарья Кахновская взяли за основу дизайн-проекта колористику коричневых оконных рам. Та же палитра позволила определиться с выбором напольного покрытия, а для текстиля и отделки стен лучше подошли серые, молочные и бежевые тона. Лаконичную цветовую гамму разбавил акцентный серо-зеленый.
Все системы хранения проектировали на заказ — мебель в каждой из гардеробных, детской, кабинете и санузлах была выполнена мастерами компании «Мебель Королей». Это надежный подрядчик, который уже не впервые воплощает авторские идеи команды в жизнь. Задачи сильно сэкономить не стояло, но реализация дизайн-проекта пришлась на связанный с приостановкой поставок из Европы период. Для команды ANGA Project эти трудности стали настоящим творческим вызовом.
Кухня-гостиная
Общественному пространству дизайнеры часто уделяют особое внимание, так как оно выступает «лицом» интерьера. Помещение, включающее в себя привычные кухню, столовую и зону отдыха, избавили от перегородок для большего ощущения свободы. Чтобы не утяжелять его визуально, функциональные блоки логически сепарировали друг от друга, а гарнитур вынесли в незаметную нишу. Его фартук украсил серый камень с деликатным рисунком — он почти не выделяется на фоне монохромных фасадов. Обеденную группу решили выделить композицией из изящных светильников, которые дополнили раскладной стол BoConcept и стулья с поворотным механизмом.
Необходимого для кинопросмотров полумрака в комнате можно добиться за счет рулонных штор
Мягкая группа выполнена в выдержанном монохроме, оттеняющем вид на шумный и яркий центр города. Выбранный модульный диван MONONOVA с оригинальной обивкой из рогожки украсило переплетение светлых и темных нитей. Интересной деталью тут оказался проектор с голосовым управлением.
Нетипичная форма мастер-спальни заставила дизайнеров потрудиться, чтобы использовать метраж эффективно. Объединяющий ее с гардеробной и ванной блок находится в отдалении от самой шумной части пространства, поэтому тут хотелось добиться атмосферы тепла и отдыха. Зона решена в спокойных оттенках, которые подчеркивают диммируемые светильники с регулируемой насыщенностью цвета. В отличие от гостиной, здесь много текстиля — например, тюль, покрывала Enere и ковер Art de Vivre. Мягкие фактуры делают интерьер обволакивающим. Завершить оформление помогли графика Михаила Кабан-Петрова из Paper gallery, панно Полины Черкасовой и искусственное дерево в кашпо бренда Treez Collection.
Так как клиенты — большие ценители и коллекционеры искусства, в кабинете они попросили организовать систему хранения для литературы, керамики и других любимых предметов. Она представлена стеллажом с открытыми полками. Другим важным элементом рабочей зоны оказался мини-бар со встроенным в мебельную конструкцию холодильником и столешницей из керамогранита. Такой материал был выбран, чтобы заказчики могли готовить напитки, не переживая о чистоте мебели. Здесь же расположился виниловый проигрыватель, подключенный к колонкам по всему дому. Уголок для отдыха сформировали креслом и банкетка Vitra, торшер Muuto и кофейный столик Pedrali. Финальной деталью интерьера выступила гравюра 1799 года, на которой изображено купание людей в реке Яуза.
Наполнение детской комнаты продумывали заранее, так как на момент знакомства с дизайнерами ребенок у пары был только в планах. Однако уже к концу ремонта появился малыш, который занял подготовленную для него спальню в сдержанных серо-бежевых тонах. Тут установлены шкаф, кроватка для младенца, полноценная постель для матери и пеленальный столик.
Сдержанные санузлы квартиры решены в едином стиле с основным пространством: на фоне приятной на ощупь бежевой плитки выделяются только выполненные на заказ тумбы. Их белые столешницы дублируют оттенок ванны Salini. Над инсталляцией унитаза в гостевом санузле размещено функциональное хранение, замаскированное фасадами в тон отделки, а фишкой мастер-ванной оказалась комфортная зона с тропическим душем. Освещение здесь разделено на разные сценарии: заказчики смогут выбирать между ярким и приглушенным.