Аутентичный русский декор в воздушном интерьере загородного дома – проект студии интерьера EgoDesign
Аутентичный русский декор в воздушном интерьере загородного дома – проект студии интерьера EgoDesign
Мария Ляпунова из студии EgoDesign создала красочный и уютный интерьер загородного дома для семьи с дочерью-подростком. Изначально коттедж строил для себя молодой человек, который планировал принимать здесь многочисленных друзей и любил большие пространства, но новые владельцы тоже оказались очень гостеприимными. Основной задачей дизайнеров было создание комфортного места для отдыха у соснового леса. Заказчики мечтали о возможности отрешиться от городской жизни на несколько дней и попросили вписать оформление в природную локацию. Чтобы избежать присущей недвижимости вне города тяжеловесности, команда остановилась на миксе скандинавского и японского стилей.
Локация: Ижевск
Площадь: 246 м²
Авторы: Мария Ляпунова, студия интерьера EgoDesign
Фото: Сергей Ананьев
В основу будущего интерьера легли простые естественные формы и фактуры, а также натуральные материалы. Пространство решили не перегружать деталями и яркими акцентами, так как обилие неровных линий придает ему достаточной динамичности. Ощущение легкости и простоты в проект привнесли светлые тона и необычный декор от российских производителей.
Мария Ляпуноваархитектор, основатель студии EgoDesignПоследние недели работ пришлись на конец декабря – тогда на объекте одновременно находились сорок человек, в гостиной стояли распилочные станки, а пол был усыпан плотным слоем опилок. Только слаженное сотрудничество команды позволило сдать проект прямо перед Новым годом вместе с елкой, новогодним декором и даже подарками заказчику
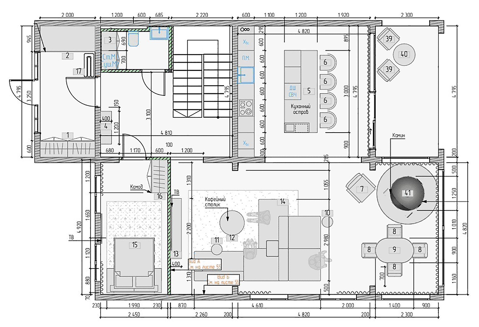
Планировка
Поскольку этот дом – не основное жилье клиентов, они не закладывали в проект крупный бюджет. Здание в коттеджном поселке «Соловьевские дачи» отличалось обилием естественного света и панорамными окнами, а также фасадами из сибирского кедра. Семья много времени проводит вместе и часто приглашает к себе друзей, поэтому требовалось выделить большое общественное пространство. Так как сюда приезжают супруги и их дети, во всех комнатах находятся сразу несколько функциональных блоков – например, с кухней-гостиной соседствует столовая. Из нее можно пройти прямо на террасу, а для гостей Мария Ляпунова предусмотрела отдельную спальню.
План первого этажа с мебелью
Организовать в доме эргономичные сценарии движения помогла круговая планировка с ключевыми мебельными объемами в центре помещений. Наверх здесь ведет удобная лестница со стеклянными перилами и ступенями, покрытыми ламинатом Tarkett.
План второго этажа с мебелью
Второй уровень заняли приватные зоны. Половину этажа отвели под мастер-блок: он включает в себя спальню с высокими окнами, остекленный балкон, собственный санузел и проходную гардеробную. Рядом с ней расположились вытянутый кабинет и детская с двуспальной кроватью.
Интерьер и решения
Палитра и контекст
Дом полностью деревянный, поэтому дополнительных отделочных материалов для отделки стен не потребовалось – их просто покрыли матовой белой краской. Сдержанная база визуально объединила основные помещения, среди которых выделяется только детская комната с акцентным терракотовым потолком. Яркое колористическое решение отличает только санузлы: плитка глубокого аквамаринового цвета напоминает об отдыхе на берегу реки. Легкая палитра интерьера позволила свободно добавлять сюда красочные элементы в декоре и текстиле.
Чтобы не перегружать оформление пятнами цвета, команда студии EgoDesign искала правильную пропорцию между сложными тонами и органическими формами.
Все системы хранения были изготовлены на локальных российских производствах, так как небанальная архитектура коттеджа и сжатые сроки реализации требовали индивидуального подхода.
Кухня-гостиная
«Сердцем» просторной кухни-гостиной оказалась досуговая зона с большим серым диваном, ориентированным на две стороны. Она одновременно обращена к телевизору и панорамным окнам, поэтому здесь могут расположиться сразу несколько компаний, которые не будут друг другу мешать. Неподалеку от мягкой группы появился футуристичный камин: его темный корпус сразу привлекает внимание на фоне минималистичной отделки. Атмосферу уюта и тепла здесь обеспечили фактурные элементы – журнальный столик La Redoute, ковер Royal Hali и выразительный декор Lubich ceramics.
Наиболее освещенная часть помещения досталась обеденной зоне. Стол и стулья решили не изготавливать на заказ, а купить у скандинавских брендов UNIKA møblar и Norr11. Регулировать степень освещенности комнаты позволяют графичные горизонтальные жалюзи Windeco и летящие шторы фабрики LINDER.
Пол кухни и прихожей покрыт износостойким керамогранитом Flaviker
Место для готовки получилось самой красочной деталью интерьера за счет эффектного текстильного панно из красных, синих и желтых нитей. Оно весит почти тридцать килограмм и задает праздничное настроение всего этажа. Заданные им оттенки поддерживает терракотовый подвесной светильник. Вместе с черными стульями TheIDEA он выделяется благодаря белому лаконичному гарнитуру, спроектированному по авторским эскизам.
Фишкой приватных зон стал частично скошенный потолок, повторяющий геометрию крыши. Мастер-блок выполнен в схожем стиле с остальным домом: стена за изголовьем кровати La Redoute покрыта декоративными панелями из светлого дерева. Ему в тон был подобран комод с керамической вазой и еще одним панно из нитей. Комната перетекает в гардеробную и ванную – последняя отделена откатной дверью, но туда также можно попасть из спальни: тут снова появляется круговая планировка. По словам заказчиков, такое решение оказалось очень удобным. Здесь также есть мягкая группа с двумя креслами-шезлонгами, небольшими столиками и торшером.
Самой яркой деталью пространства выступила необычная кровать, вдохновленная работами российского дизайнера Дарьи Васильковой. Так, спальное место с каркасом из тика и плетеным изголовьем подчеркнул воздушный балдахин. Жатый текстиль с неоднородной фактурой дополнила огромная коса из макраме. Примерок было несколько, и в результате косу пришлось увеличить вдвое и добавлять к ней деревянные бусины. Ткань крутили разными способами, чтобы добиться максимальной естественности и удобства в использовании.
Уютную детскую команда наполнила теплыми терракотовыми тонами – ими покрыта часть потолка комнаты и стеллажа для книг. Так как рабочее место вынесли в отдельное помещение, здесь нет ничего лишнего – только кровать, шкаф для одежды и зона отдыха. Клиенты часто приезжают сюда на выходные или в каникулы, когда уроков почти не задают.
Интерьер намеренно сделали подходящим для ребенка любого возраста, чтобы даже когда дочь заказчиков чувствовала себя здесь комфортно даже когда вырастет. Доминантой оформления стало полосатое кресло, созданное по дизайну Гаэтано Пеше.
Ванная комната
Санузел в мастер спальне интересен своей планировкой – благодаря стене из прозрачных стеклоблоков сюда попадает дневной свет. Тут использован целый микс керамогранита Argenta, Estima и Peronda. Сантехнику команда EgoDesign выбирала у брендов Tesi и Salini, а смесители – у компаний Remer и Wasser Kraft.