Элегантный интерьер квартиры со сложной планировкой и продуманной детской — проект Евгении Яковлевой
Элегантный интерьер квартиры со сложной планировкой и продуманной детской — проект Евгении Яковлевой
Лаконичный интерьер этой квартиры создавался для стильной взрослой заказчицы, в гости к которой периодически приезжают трое внуков разного возраста. Хозяйка дома обладает тонким изысканным вкусом, ведет активный образ жизни и много путешествует, часто посещая выставки и музеи. Ее хорошая насмотренность и предпочтения совпали с видением дизайнера Евгении Яковлевой – так родилось деликатное и не перегруженное деталями оформление.
Локация: Екатеринбург
Площадь: 130 м²
Авторы: Евгения Яковлева, YakovlevaBURO
Фото: Сергей Красюк
В рамках планировочного решения требовалось предусмотреть вместительную детскую, в которой внуки клиентки смогут позаниматься учебой, поиграть и даже остаться на несколько дней. Приватный блок хотелось сделать не менее комфортным: он включает в себя спальню, просторный гардеробную и большой санузел.
Евгения Яковлевадизайнер интерьера,основательница YakovlevaBUROБлагородная роскошь – основной принцип этого проекта. Деликатная цветовая гамма, выстроенная на нюансах и текстурах, благородные материалы и минимальное количество декора создают то самое тонкое настроение без лишнего шума и суеты.
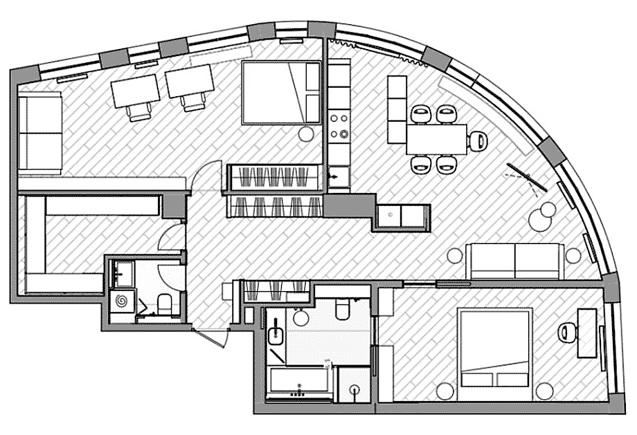
Планировка
Объект сдавался в свободной планировке, которая отличалась большой линией освещения с восемью окнами по периметру квартиры. С одной стороны, они наполнили дневным светом и ощущением воздуха все помещения, а с другой – выступили ограничивающим фактором при расстановке перегородок. Также требовалось вписать в концепцию зонирования мокрые точки и вентиляционный канал, расположенный в центре дома. Еще одной сложностью была радиальная геометрия фасадной стены.
План квартиры с мебелью
В результате на ста тридцати квадратных метрах разместились все зоны, о которых мечтала заказчица, — объединенная кухня-гостиная, детская спальня с собственным санузлом, отдельная гардеробная и мастер-блок с комнатой хозяйки и прилегающей ванной.
Интерьер и решения
Палитра и контекст
При выборе отделочных материалов команда YakovlevaBURO руководствовалась желанием сохранить ощущение единого пространства без лишних линий. Воплотить эту идею в жизнь помогла паркетная доска Sampo, уложенная во всех помещениях кроме санузлов. Для холла лучше всего подошли настенные панели DEREBAS из шпона и эмали. Такое сочетание делает максимально незаметными шкафы и межкомнатные двери скрытого монтажа. Для жилых комнат Евгения Яковлева выбрала обои, текстура которых добавляет интерьеру выразительности.
Особую роль в проекте играют системы хранения, проектированию которых дизайнеры всегда уделяют огромное внимание – именно от эффективности этих конструкций будут зависеть чистота и эстетика пространства. Так, первым этапом при разработке встроенных шкафов и гардеробных стал разбор образа жизни и повседневных привычек хозяев дома. Например, для этой заказчицы идеально подошли открытые системы от итальянской фабрики Pianca. Благодаря им гардеробная оказалась неотъемлемой частью общественного пространства: полки дублируют оттенок паркетной доски, а настенные панели выполнены из сатинированного стекла, которое с обратной стороны окрашено металлизированной краской.
Кухня-гостиная
Мягкая группа в общественной зоне получилась довольно компактной: она сформирована мягким диваном Roche Bobois, черным кофейным столиком Eichholtz и изогнутым торшером. Вид на эту композицию открывается уже из длинного коридора с зеркальными шкафами. Подчеркнуть фактуру шоколадных обоев Rasch Textil помогло золотистое декоративное панно Eichholtz, на поверхности которого отражается вся обстановка комнаты. Многофункциональность небольшого телевизора Samsung обеспечила поворотная стойка Porada.
Необычный кухонный гарнитур потребовал участия сразу трех итальянских фабрик, поэтому верхние шкафы с отделкой под металл дизайнеры заказывали у компании Lube, нижний ряд – у производителя L’Ottocento, а встроенную часть и остров – у бренда Zampieri. Финальная конструкция получилась легкой и гармоничной за счет выверенных пропорций и спокойной фактуры керамогранита с имитацией натурального камня. Завершающим штрихом кухни стал мрамор Arabescato Gold, текстура которого наполняет пространство своей особенной энергией.
Воздушную обеденную группу сформировали стол Lago на прозрачных опорах из стекла, строгие стулья Liu Jo. Баланс легкости и графичности сделал их точкой притяжения кухни-гостиной.
Спальня
Расслабленную атмосферу в хозяйской спальне создают шелковые обои RASCH TEXTIL, на фоне которых воздушная кровать B&B Italia смотрится особенно легко. Они добавили деликатной текстуры и мягкости оформлению. Дополнительного объема в комнату привнесли зеркала, отражающие туалетный столик Liu Jo с аккуратным креслом того же бренда. Для удобства заказчицы тут появились прикроватные столики и золотистые подвесные светильники.
Отдельной гордостью Евгении Яковлевой выступили стеллаж и оформление портала в мастер-ванную. Рифленые стекла добавляют деликатного блеска, а рамы из шпона в цвет паркета объединяют все элементы по цвету между собой. Также внутри стеллажа были предусмотрели целых шести выдвижных ящиков.
Мастер-спальня и детская кардинально отличаются по настроению. Свежее сочетание принтов и оттенков наполняет комнату легкой и творческой атмосферой: виниловые обои CASAMANCE зрительно поддерживают ковры с непохожими друг на друга рисунками. Сине-серый оттенок стены за изголовьем кровати LAGO Design оттеняет ее желто-зеленую обивку, а бежевый диван Bolzan не создает тут лишнего визуального шума. Системы хранения были изготовлены по авторским эскизам на местном столярном производстве. Так как здесь могут оставаться сразу трое внуков заказчицы, потребовались несколько блоков – шкафы для одежды, игрушек, книг и открытые полки для самого младшего из детей.
Главной задачей дизайнеров было размещение хозяйственного блока в гостевом санузле. Вместить его в небольшое помещение без потери основных функций позволило грамотное использование каждого квадратного метра. При этом объем не привлекает к себе лишнего внимания за счет керамических поверхностей Laminam под дерево. Так, главным акцентом среди лаконичной отделки стала светлая зона раковины, выделенная кварцевым агломератом. Фокусной точкой здесь кажется декорированный под скалу фасад тумбы DEREBAS. Визуально разгрузить пространство мастер-ванной дизайнеры решили за счёт объединения ванны и тумбы под умывальник в одну линию. Подчеркивает этот прием натуральный мрамор с природным рисунком. Остальное пространство оформлено крупноформатным керамогранитом с незаметными швами. Необычным решением здесь оказалось поворотное зеркало, выполненное по авторским эскизам.