
Квартира-студия с тремя функциональными зонами – проект студии INT2 architecture
Дизайнеры студии INT2 architecture Анастасия Шевелева и Александр Малинин оформили апартаменты для сдачи в аренду. Квартира расположена в реконструированном здании доходного дома конца XVIII - начала XIX веков в центре Санкт-Петербурга.
- Локация: Санкт-Петербург
- Площадь: 58 м2
- Авторы: INT2 architecture
- Фото: INT2
- Картины и постеры: Юлия Адамова, Вижу Кита
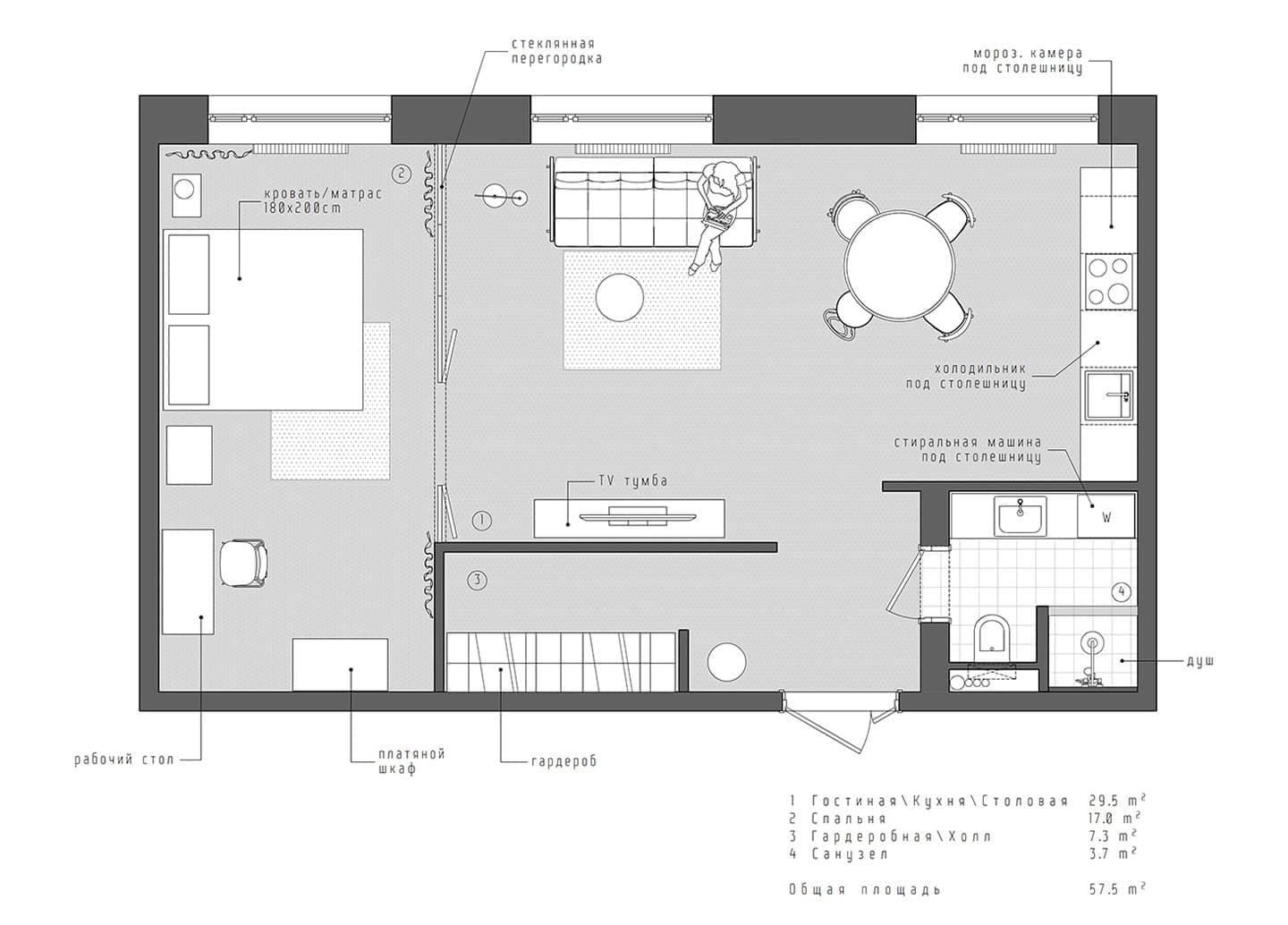
Апартаменты поделены на три зоны: кухня-гостиная, спальня и прихожая. Но визуально пространство считывается единым, с тремя большими окнами. Спальня отделена от гостиной стеклянной перегородкой: таким образом получилось изолированное место для отдыха с сохранением простора всей квартиры.
Главные условия при реализации этого проекта — небольшой бюджет и легко восстанавливаемая отделка. Стены апартаментов не выравнивались, они покрыты лишь тонким слоем шпатлевки под покраску — для максимальной экономии на материалах на услугах отделочников. Бетонный потолок от застройщика окрашен так же без выравнивания. По такому же принципу сделано покрытие пола: бетонная стяжка неидеально отшлифована и выкрашена полуглянцевой краской для бетонных полов. Низ стен идентичен цвету пола — это сделано для визуального расширения пространства за счет перехода цвета с горизонтальной поверхности на вертикальную. Настенные панели упрощаются в зоне спальни, превращаясь в длинную минималистичную панель с горизонтальной отбивкой у пола и над изголовьем кровати. В интерьере использована мебель и детали различных стилистических направлений: предметы в стиле mid-century в сочетании с индустриальными и классическими элементами.


















