
Маленькая квартира с подвижной мебелью в Любляне – проект Arhitektura d.o.o
Квартира «для троих» – для молодой пары и их любимого пса – несмотря на небольшой размер может похвастаться множеством сценариев использования. Словенское дизайн-бюро Arhitektura d.o.o обустроило двушку металлической подвижной мебелью, чтобы владельцы могли в любое время самостоятельно адаптировать планировку внутри не самого большого помещения.
- Локация: Любляна
- Площадь: 60 кв.м
- Авторы: Arhitektura d.o.o
- Фото: Miran Kambič
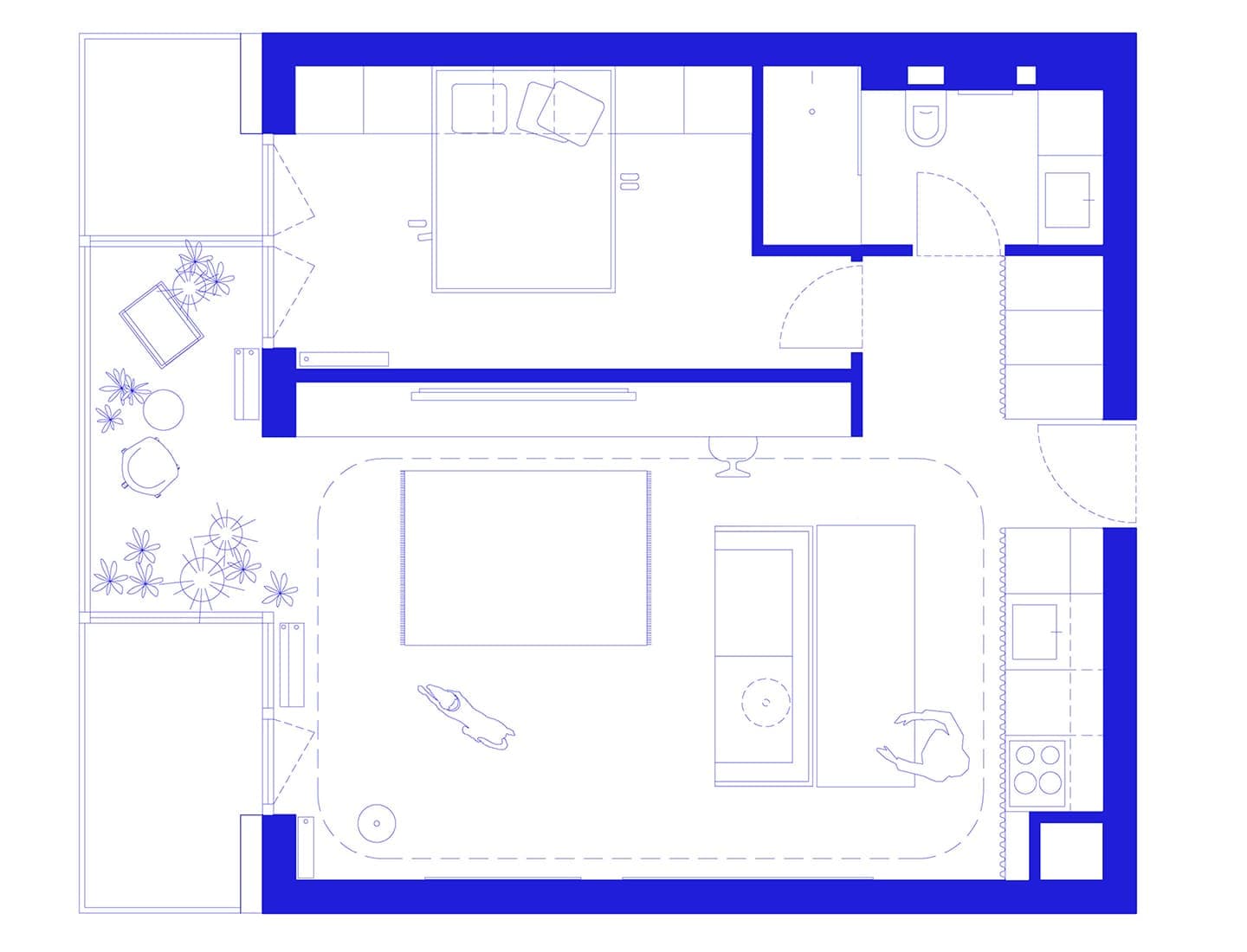
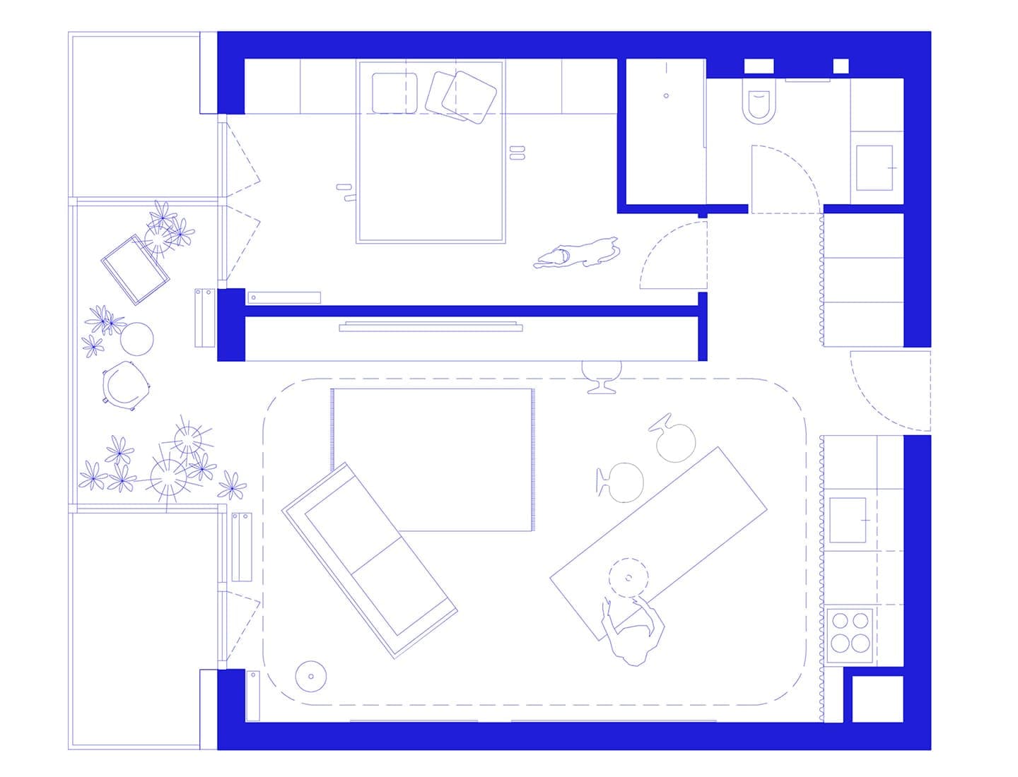
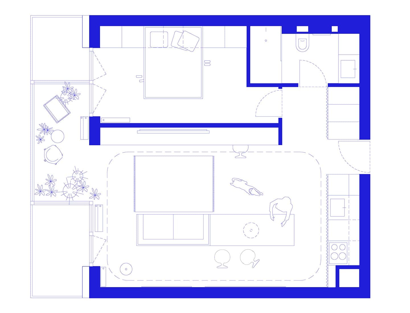
Квартира находится в самом центре Люблены – владельцам она идеально подошла по расположению, но совсем не удовлетворила по планировке. Оба работают из дома, в то же время, ведут активную общественную жизнь – зовут гостей, устраивают кинопросмотры, обеды и ужины с друзьями, занимаются йогой и тренируют собаку. Архитекторы Arhitektura d.o.o убрали все перегородки в квартире и сформировали цикличный план этажа, который позволяет легко перемещаться из комнаты в комнату. Единственным полностью закрытым помещением осталась ванная комната. Главным мобильным элементом стала стойка из нержавеющей стали в гостиной: стойка служит кухонным островом для приготовления пищи, обеденным столом или барной стойкой; она оборудована колесиками и легко перемещается по комнате. В одной из комбинаций стойка стыкуется с серым диваном, который так же отделан сталью. Рядом со входом располагается небольшой кухонный модуль: при желании кухня закрывается контрастными зелеными панелями и становится похожей на шкаф. Кроме того, в квартире есть зимний сад и небольшая лаунж-зона, которая при желании скрывается за футуристичной занавеской.

















