
Переоборудованный гараж для жизни – проект студии Barde + vanVoltt
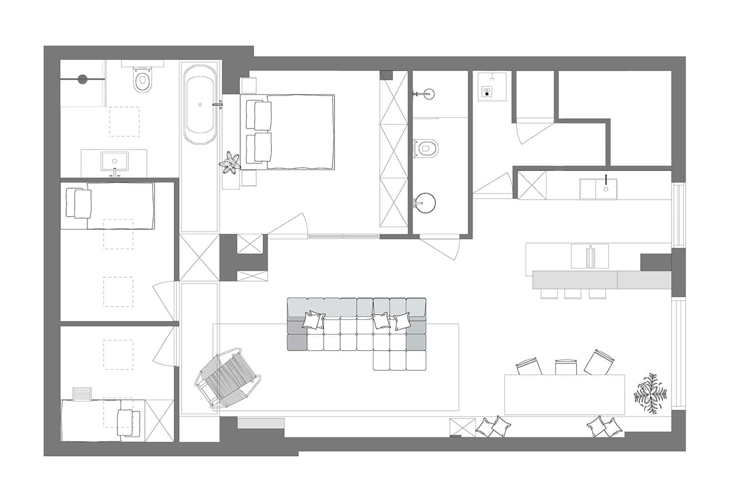
Студия Barde + vanVoltt, чей стиль в интерьере отличается калифорнийской непринужденностью и японским спокойствием, превратила гараж площадью 100 м2 в дом для семьи из четырех человек.
- Локация: Амстердам
- Площадь: 100 м2
- Авторы: Barde + vanVoltt
- Фото: Cafeine
Барт ван Сеггелен и Валери Бурма – дизайнерский дуэт из Амстердама. Просторное помещение является уникальным для этого города, где большинство квартир разделены на несколько узких уровней. Создавая баланс между целостностью здания 1930-х годов и потребностями молодой семьи, студия обратилась к промышленному прошлому дома. Бетонный пол помещения стал основой интерьера. Уют создают стены из натуральной глины и деревянные двери Meranti в стиле ар-деко, изготовленные по индивидуальному заказу – они отсылают к деталям арки того периода, когда здание было построено. Естественный свет проникает через систему потолочных окон и стеклянные перегородки. Три комнаты – спальня и две детских – разделены застекленными деревянными рамами. В ванной комнате есть отдельно стоящая оловянная ванна, а кухонный остров сделан из прокатной стали с кварцитовой столешницей. Снаружи здание сохраняет свое очарование с оригинальными вывесками хозяйственного магазина.






















