
Аскетичный интерьер компактной квартиры в Польше – проект дизайн-бюро ACOS
Интерьер квартиры в маленьком городе на южном берегу Балтийского моря команда бюро ACOS создавала с учетом своеобразного стиля жизни хозяйки. Девушка работает хирургом – ее деятельность сопряжена с постоянным стрессом и форс-мажорами. Важной задачей для дизайнеров стало создание спокойного интерьера, располагающего к размышлениям и релаксации после тяжелого дня.
- Локация: Слупск, Польша
- Площадь: 65 м²
- Авторы: Архитектурное бюро ACOS (A Collection of Stories)
- Фото: PION Studio
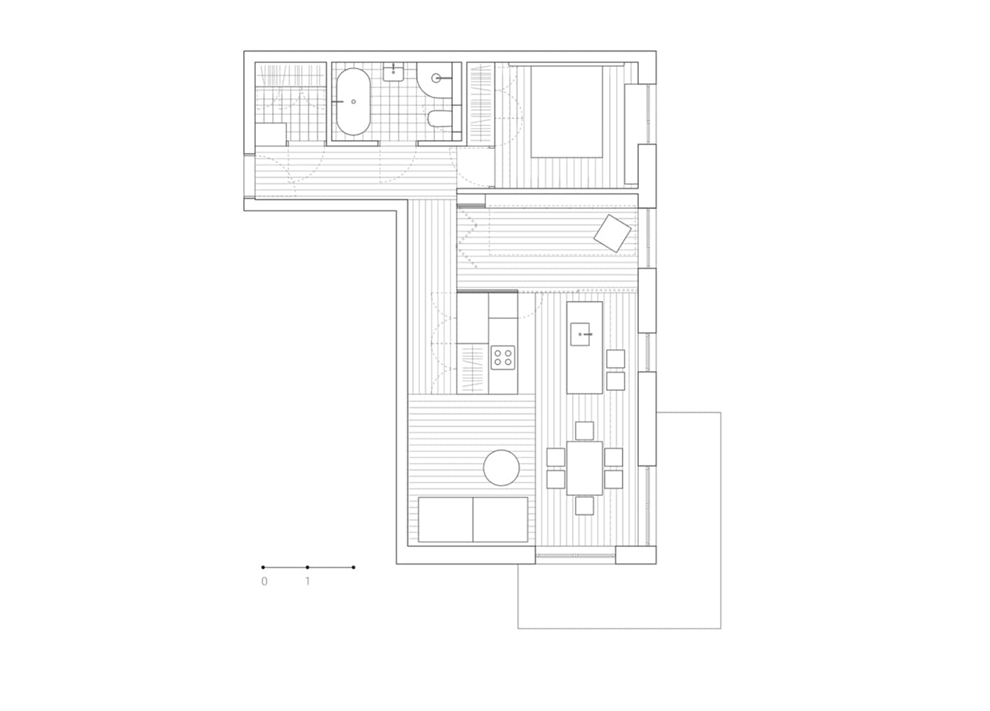
Особенность проекта – тщательно продуманная планировка: дизайнеры удалили почти все перегородки, чтобы избежать ненужного разделения и без того компактной квартиры. В центре помещения расположен массивный модуль, выделяющий жилой блок. За ним скрывается светлая и удобная гостиная, функциональная кухня с монолитным островом для готовки, библиотека и вместительная гардеробная. В отделке дизайнеры предпочли натуральные материалы – дерево, камень, керамику и мраморную штукатурку. Интерьер выполнен в нейтральной цветовой палитре в разных оттенках белого и бежевого. Графичности добавляют черный, которым выделен кухонный блок, и разные оттенки серого. Встроенная мебель и обеденный стол сделаны на заказ, но и тиражные предметы в интерьере тоже есть: стулья J77 и J14 бренда Hay. Свет – особая гордость команды бюро: с помощью минималистичных светильников Chors и Menu создано несколько сценариев освещения.




















