
SPA-зона для питомцев и деревянные окна в интерьере квартиры со сдержанной палитрой — проект Ольги Зубаревой
Владельцы этой квартиры — близкие друзья Ольги Зубаревой, поэтому работа строилась на полном доверии. Дизайнер предпочитает использовать четкие линии и сдержанную цветовую гамму с преобладанием натуральных материалов. В этом проекте ее главной целью стало создание лаконичного интерьера с множеством систем хранения.
- Локация: Москва
- Площадь: 85 м²
- Автор: Ольга Зубарева
- Фото: Антон Лихтарович
- Стиль: Ира Темнова
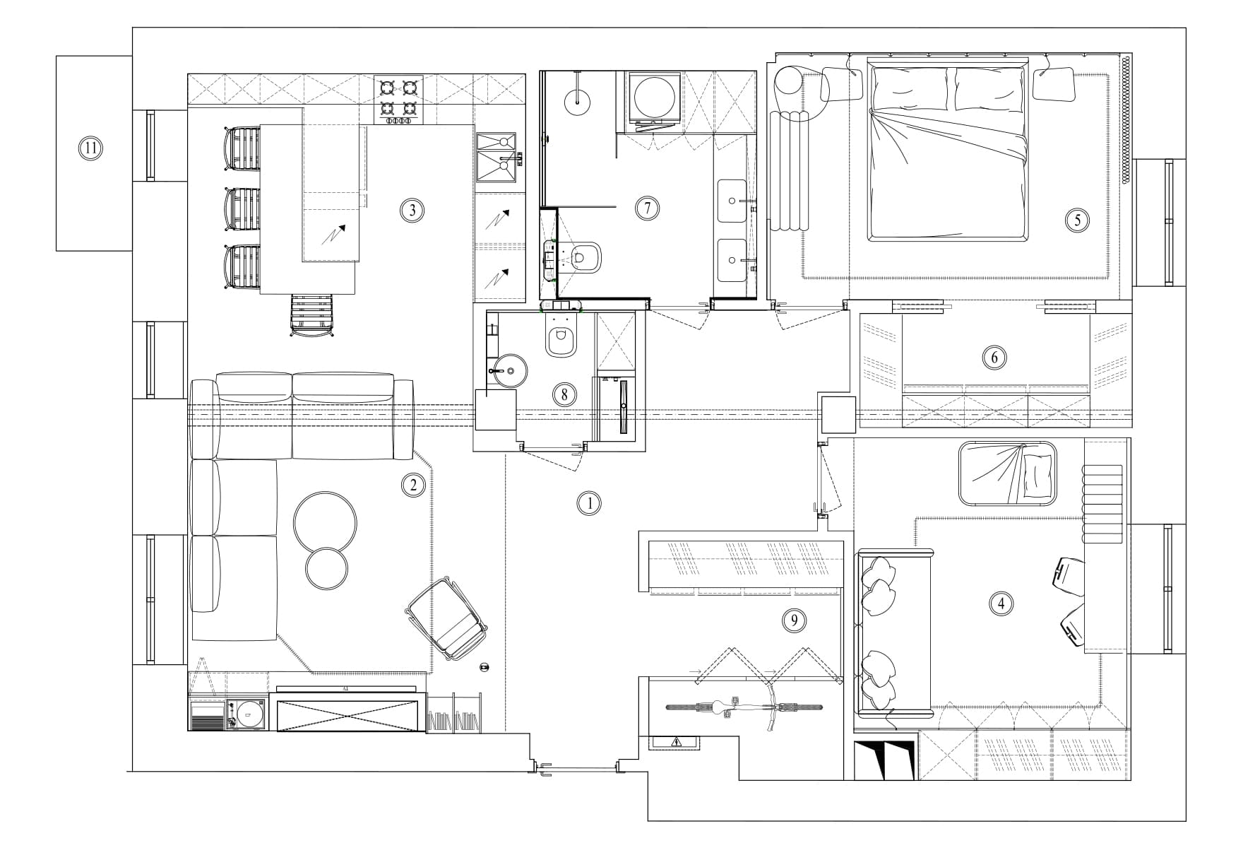
Удобная планировка позволила выделить в квартире гардеробные при входе и в спальне. В процессе работы были демонтированы стены, потолок и полы. Также дизайнер заменила инженерные коммуникации. В помещении установлены современная система кондиционирования и вентиляция, скрытые в запотолочном пространстве. Пластиковые окна дизайнер поменяла на деревянные, выкрасив рамы в коричневый и серый цвета. В прихожей спроектирован вместительный шкаф для хранения спортивного инвентаря. Стеллаж для коллекции виниловых пластинок визуально отделяет холл от гостиной. Кухня-гостиная получилась светлой и уютной за счет трех окон и выхода на балкон, на котором отреставрирована решетка ограждения. Акцентом в гостиной стал светильник Vibia Plusminus на ремнях, который ассоциируется с элементами спортивного инвентаря. Дополняет композицию кресло-реклайнер Prostoria, а ковер Quaderna Zanotta объединяет эту зону в цельную композицию. По просьбе заказчиков дизайнер создала атмосферу гостиничного номера в спальне. Изголовье кровати отделано панелями из дубового шпона, в которые встроены мини-треки для деликатного освещения. Украшением комнаты стали торшер Flos Chiara и зеркало lulu’space. Для джек-расселов Майло и Морошки Ольга Зубарева спроектировала SPA-зону с лапомойкой в гостевом санузле. Стены коридора и гостиной служат фоном для предметов искусства. В прихожей интерьер дополняет картина Кирилла Кипяткова «Велоспорт. МГУ», а в общественной зоне расположена работа Ольги Тобрелутс «Антиной».



















